на главную
контакты
Теплоэнергетик
котлы наружного размещения
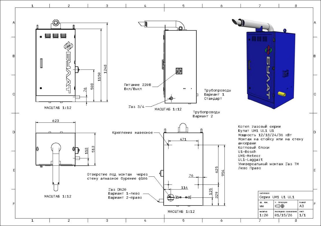
Серия UM
Газовые котлы наружного размещения мощностью от 12 до 36кВт
Контакты
Республика Татарстан
420126 Казань ул.Чистопольская 64
Высокая гора ул.Полковая 4
8-800-555-31-08
Email:
info@kts-bulat.ru
каталог
документация
сертификаты
оборудование
серия W
серия R
серия GB
серия GF
производство
офисы
жилые дома